티스토리 뷰
목차
이번 포스팅은 서울 서초구 반포동 '래미안 트리니원'입니다.
삼성물산의 프리미엄 브랜드 ‘래미안’이 2025년 선보이는 핵심 단지로, 분양일정부터 예상 시세차익등의 핵심정보를 래미안 트리니원의 주변 유사 단지의 자료를 기반으로 분석해보았습니다.

1. 사업개요

래미안 트리니원은 서울 서초구 잠원동 52번지 일대 신반포15차 재건축 단지로,
삼성물산이 시공하는 최고급 주거 브랜드 단지입니다.
잠원동은 강남권 내에서도 학군·교통·한강조망 3박자를 모두 갖춘 입지로 평가받으며,
‘래미안 원베일리’와 함께 강남권 시세를 선도하는 입지로 주목받고 있어요.
2. 분양일정
래미안 트리니원은 2025년 하반기 분양이 유력하며,
공공분양이 아닌 민간 재건축 분양이기 때문에 사전청약은 없습니다.
- 모집공고: 2025년 하반기 예정
- 입주 예정: 2028년 전후 예상
3. 입지환경
반포동 중심에 위치한 래미안 트리니원은 지하철 9호선 구반포역 도보 2분 거리의 초역세권이며,
세화여고, 세화고, 세화여중 등을 품고 있는 학군지입니다.
- 교통: 지하철 9호선 구반포멱 도보 2분 / 신반포역 도보 10분
- 학군: 신반포초·잠원초·세화여고 등 명문학군 인접
- 편의시설: 뉴코아백화점, 고속터미널, 신세계백화점, 한강공원
- 주변 시세 리딩 단지: 래미안 원베일리, 아크로리버파크

역세권 + 강남권 학군 + 한강변(한강뷰) 생활권이란 세 요소를 모두 만족시켜 투자자와 실거주자 모두에게 매력적인 입지예요.
4. 예상분양가
래미안 트리니원의 예상 분양가는 평당 6,700만원으로 전망되며, 한강 조망 및 펜트하우스형 고층 타입은 평당 4억 원도 가능할 것으로 보입니다.



6. 단지배치도
래미안 트리니원은 남향 위주의 4Bay 평면 배치와 한강 조망 세대 집중 배치, 고급 커뮤니티 시설(피트니스, 독서실, 실내골프, 게스트하우스)이 포함된 설계로 최상위 주거 공간을 지향합니다.

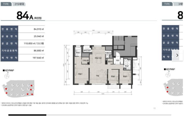
7. 타입별 평면도

