티스토리 뷰
목차
반응형
방배 르엘 일반분양, 청약자라면 꼭 알아야 할 핵심 정보 총정리!
서울 서초구의 고급 주거지, 방배동에 들어서는 신규 고급 브랜드 아파트 ‘방배 르엘’. 입지, 시세, 분양가, 청약 전략까지, 실수요자와 투자자가 모두 주목하는 단지입니다. 지금부터 꼭 필요한 분양 정보를 순서대로 정리해드립니다.
1. 사업개요
2. 분양일정
- 입주자 모집공고: 2025년 하반기 예상
- 청약 접수일: 공고 후 1~2주 내 접수
- 당첨자 발표 및 계약: 청약 후 1~2주 이내
- 입주예정일: 2028년 초 예정
3. 입지환경
- 교통: 2호선 방배역 도보 5분
- 교육: 방일초, 상문고, 서문여고 등 우수 학군
- 생활: 서래마을, 방배로 상권, 고속터미널, 신세계백화점
- 자연환경: 몽마르뜨공원, 서리풀공원 등 인접
4. 예상분양가
- 평당가 5,500만원 예상
- 전용 59㎡: 약 12.7억 원
- 전용 84㎡: 약 18.1억 원
5. 시세차익
- 인근 방배동 신축(롯데캐슬아르떼) 시세 (84㎡ 기준): 20.1억 원
- 방배 르엘 예상 분양가 (84㎡ 기준): 18.1억 원
- 예상 시세차익: 2억~3억 이상
방배 롯데캐슬아르떼
방배동 디에이치방배
6. 단지배치도
- 배치구조: 전동 남향 위주 배치
- 커뮤니티시설: 피트니스, 키즈룸, 작은 도서관 등
- 조경계획: 단지 내 녹지 공간 및 산책로 확보
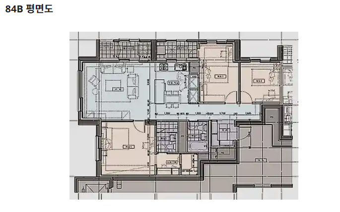
7. 타입별 평면도
- 전용 59㎡: 3룸 2욕실, 실속형 신혼타입
- 전용 74㎡: 3룸 2욕실 + 팬트리
- 전용 84㎡: 4베이 + 드레스룸 + 팬트리 구성
8. 특공 & 일반 추첨제 물량 정리
- 전용 59㎡ 이하: 40% 가점제 + 60% 추첨제
- 전용 84㎡ 이하: 75% 가점제 + 25% 추첨제
- 전용 85㎡ 초과: 100% 가점제
- 특별공급: 신혼부부, 생애최초, 다자녀, 노부모 부양 가능
방배 르엘은 청약가점이 낮은 분들도 추첨제 물량을 공략할 수 있는 기회가 존재합니다. 특히 신혼부부나 생애최초 특공 조건을 갖춘 경우 유리합니다.
✅ 마무리 정리
방배 르엘은 강남3구의 핵심 입지인 방배동 내에서도 보기 드문 신축 프리미엄을 제공하며, 분양가 상한제 적용, 강남권 고급 주거지, 우수 학군 및 교통환경 등 실수요자와 투자자 모두에게 매력적인 조건을 갖추고 있습니다.
특히 시세차익이 기대되는 로또 청약 단지로 평가받고 있으므로, 지금부터 청약 통장 점검과 자금계획을 철저히 준비하시는 것이 좋습니다.
반응형



















