티스토리 뷰
목차
힐스테이트 메디알레는 현대건설이 시공하는 프리미엄 주거 단지로, 의료·업무 복합단지 내 위치한 것이 특징입니다.
특히, 대규모 의료 시설과 업무지구가 가까워 직주근접 수요층에게 최적의 주거 환경을 제공합니다.

1. 사업개요 및 분양일정

힐스테이트 메디알레는 교통, 상업, 의료 인프라가 잘 갖춰져 있으며, 브랜드 인지도와 입지적 장점을 바탕으로 높은 청약 경쟁률이 예상됩니다. 분양 일정과 주요 절차를 꼼꼼히 확인하고 미리 준비하는 것이 성공적인 청약의 핵심입니다.
2. 단지배치도
힐스테이트 메디알레의 단지배치도는 쾌적한 주거 환경을 위해 일조권과 조망권을 최대한 확보한 설계로 구성되어 있습니다. 남향 위주의 배치를 통해 대부분의 세대가 일조와 환기를 극대화할 수 있으며, 넓은 동 간 거리를 확보해 입주민 간 프라이버시도 신경 썼습니다.

단지 내 주요 시설로는 커뮤니티센터, 피트니스센터, 실내 골프연습장, 어린이 놀이터 등이 있으며, 특히 조경 시설은 자연 친화적으로 설계되어 입주민들이 도심 속에서 힐링할 수 있도록 구성되었습니다. 단지 내 산책로와 정원은 휴식과 여가를 동시에 즐길 수 있는 공간을 제공하여 쾌적한 주거 생활을 가능하게 합니다.

또한, 차량 동선과 보행자 동선을 철저히 분리하여 안전한 단지 환경을 조성하였으며, 지하 주차장 공간을 넉넉하게 설계하여 주차 편의성도 확보했습니다. 지하주차장→세대 직통 엘리베이터를 통해 동선 최소화로 편리한 생활이 가능합니다. 이처럼 단지배치도는 입주민의 생활 편의성과 안전을 최우선으로 고려한 점이 돋보입니다.
3. 일반분양 물량 및 분양가
힐스테이트 메디알레의 가점제와 추첨제 물량은 주택형별로 다르게 적용되며, 전용 85㎡ 이하는 가점제 75%, 추첨제 25%, 전용 85㎡ 초과는 **가점제 30%, 추첨제 70%**로 구성됩니다. 이로 인해 가점이 낮은 2030 청년층과 신혼부부도 추첨제를 통해 당첨 기회를 노릴 수 있어 인기가 많습니다.

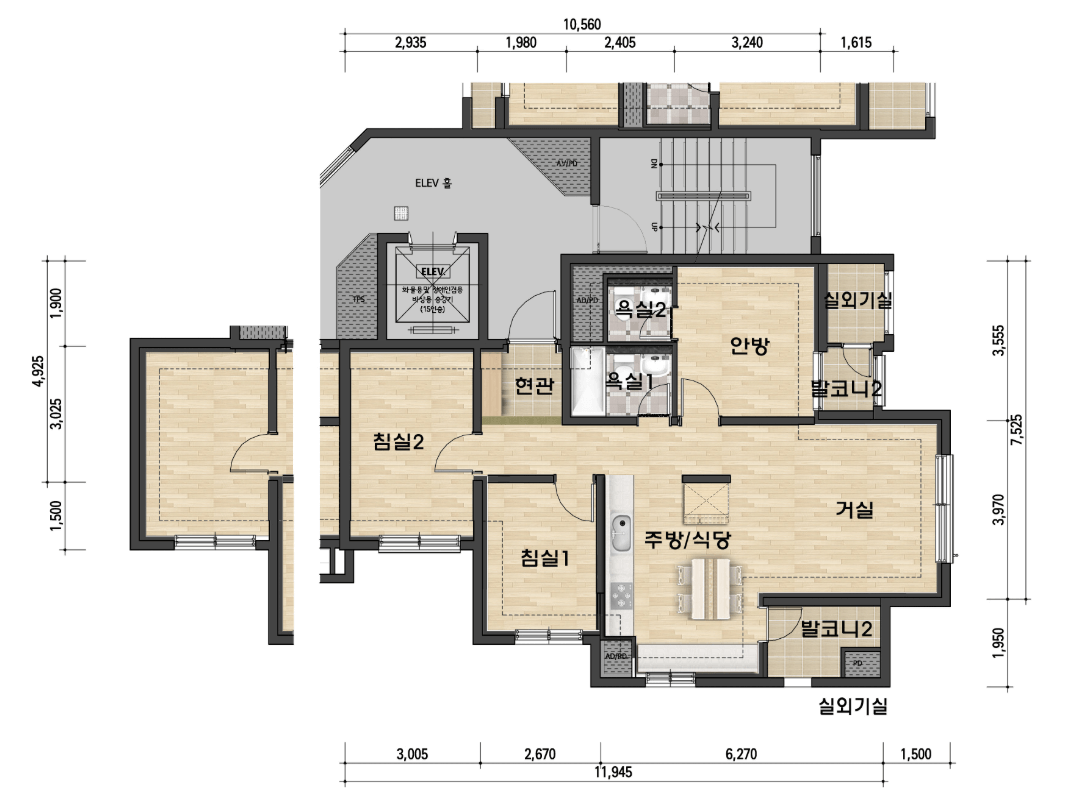
4. 평면도
힐스테이트 메디알레는 다양한 수요층의 니즈를 반영한 다양한 평면 설계로 구성되어 있습니다. 전용면적 59㎡, 74㎡, 84㎡ 등 중소형 평형대가 주를 이루며, 최근 선호도가 높은 판상형 구조로 개방감을 극대화했습니다.






또한, 일부 세대에는 알파룸, 팬트리 등 추가 수납공간을 제공하여 공간 활용도를 극대화했으며, 발코니 확장을 통해 더 넓은 실사용 면적을 확보할 수 있습니다. 스마트홈 시스템이 적용되어 조명, 냉난방, 보안 등을 원격으로 제어할 수 있어 편리한 주거 생활이 가능합니다.
5. 자금 마련 계획
힐스테이트 메디알레 청약에 성공하기 위해서는 체계적인 자금 마련 계획이 필요합니다. 계약금은 **분양가의 10%**이며, 중도금 대출은 최대 **60%**까지 가능하여 자금 부담을 덜 수 있습니다.
중도금 대출 이자는 이자 후불제 방식이 적용되는 경우가 많아, 입주 시점까지 자금 계획을 여유롭게 조정할 수 있습니다.
입주 시에는 잔금 30%를 완납해야 하므로, 주택담보대출 한도를 미리 점검하고 상환 계획을 철저히 세우는 것이 중요합니다.